DescriptionThe ExitGuard 2 is an external emergency exit steel doorset with a double door leaf arrangement, purpose made to the perfect size for your project.
Standard maximum width is 2860mm wide and 2970mm high for this double leaf door.
Single leaf doorsets maximum sizes are 1470mm wide and 2970mm high.
A fully compliant and certified emergency exit door with the correct panic hardware is an essential part of any commercial building fire exit strategy, but it is still an external door on any building too, which means it needs to protect well against weather, heat and cold and attempted forced entry from outside. Some confusion exists often between a fire exit door and a fire door which is to stop the spread of fire and not get away from it as fast as possible. Other references to this door include Panic escape doors, Fire escape doors, Panic bar doors, Push-bar exit doors. The actual specific application on site depends on the intended primary function.
A FIRE EXIT door is to provide the fastest escape from a fire in the building and will be designated as such with signage and directions.
An EMERGENCY DOOR is intended for any emergency, not necessarily fire. The exact definition can affect the furniture choice for the door.
This ExitGuard door also benefits from having good standard levels of thermal insulation, important for any external steel doorset and also for energy conservation and newer building regulations in the UK.
Thermal Performance:
Tested and achieving a rating of 2.2W/m2K based on a door size of 1090mm x 2090mm WxH – values may vary slightly depending on size and finished colour of the doorset.
Reduced U-value are also readily available.
The ExitGuard can also be manufactured with higher levels of security and insulation to assist with specific requirements. Features would include:
Multi-point locking systems: secure locking points that resist forced entry yet easily release during emergency evacuation.
Anti-tamper mechanisms: to prevent unwanted intrusion and ensure your building remains secure when doors are closed.
Galvanised steel construction: highly durable, corrosion-resistant, and suitable for internal and external applications.
ApplicationFire Escape and emergency exit steel doorset for use on the external envelope of any building, domestic, commercial or industrial premises.
Regular customers and specifiers include: Schools, colleges, universities, factories, industrial units, retail outlets, hospitals and domestic apartment buildings.
Any use on the external skin of a building including increasing the insulation, security and acoustic ratings where required to either offer a solution or comply with higher specification or regulations. Double width doorset with 2 leaves whcih can both be using panic furniture if required.
SpecificationMade to Measure
Samson ExitGuard steel doorsets are made to order at a UK factory and are available in a wide range of sizes. This emergency fire exit doorset is a complete door and fixing frame with all relevant ironmongery, locking and door closers supplied and fitted (some closers/handles supplied to fit on site).
Easy to Fit
The door has been designed to make installation as easy as possible with an industry special of an adjustable outer frame section to take up any discrepancies in the aperture when fitting.
Durable
The steel doorsets have door blades manufactured from two 1.2mm corrosion resistant steel sheets lockformed together by two 1mm bonding skins of Aluzinc formed around a rigid honeycomb core using a no-weld construction.
Our external steel doorsets have 1.5mm thick steel frame too, with thicker steel specification available on request.
Strong, versatile and cost effective
The versatility of our Samson ExitGuard steel doorsets makes them suitable for use in a wide range of external applications from schools, warehouses, factories and offices to car parks and supermarkets.
Our Samson ExitGuard doorsets are supplied with hardware fitted as standard which, when combined with our adjustable fixing feet and variable sub-frame, drastically reduces the installation time on site, which in turn adds value to a project.
The single fix design of our doors can offer greater cost savings when priced against overall installation times for timber doors, and the inherent durability of steel means that in areas of high traffic or potential abuse the 'whole life' cost of a steel doorset significantly outweighs that of a timber doorset and has a 10 year anti-corrosion guarantee (subject to site location).
Powdercoating, patterns and stainless steel finishes.
ExitGuard 2 doors are available polyester powdercoated as standard in one of over 50 colours. Alternatively, doors can be polyester powdercoated in any BS or RAL colour.
The ExitGuard doors are also available in stainless steel, with brushed, polished and patterned finishes available. Alternatively, our external doors are available unfinished for site finishing.
Panic Hardware
ExitGuard steel doorsets can be fitted with a range of panic hardware in order to comply with BS EN 1125 and BS EN 179 standards.
We can fit a range of panic hardware for both emergency applications where the exit door is in a low occupancy environment and will only be used by trained personnel, and for panic applications where the exit door is used by the public and provides 'safe and effective escape through the doorway with the minimum effort and without prior knowledge of operation'.
We can also fit a range of outside access devices to provide practical, controlled, and durable access to secure premises.
Vision Panels
To comply with Part M of the Building Regulations 2004, doors across circulation routes should have visibility glazing.
ExitGuard doorsets can be fitted with a wide range of clear laminate vision panels, with custom sizes and glass types available to suit your specific requirements. Our vision panels are constructed from 1mm cold rolled steel, and screwed together from one side.
Louvre Panels
The Samson ExitGuard doorsets can also be fitted with a wide range of louvre panel options.
Our standard louvre offers 50% air flow, with louvre blades constructed to stop birds. Galvanised insect and fly mesh are also available as optional extras.
Side and Over Panels
We offer a range of side panels and over panels for our Samson ExitGuard single and double doors. Panels can be solid, hinged, removable, flush, glazed or louvered depending on your specific requirements.
Locking and Handle Solutions
The ExitGuard steel doorsets can be fitted with a wide variety of mortice locks and latches, with all lock cases tested to BS EN 12209 and all lever furniture tested to BS EN 1906.
Technical Information
We supply a wide range of our Samson ExitGuard steel doors with a guaranteed lead time of only 10 working days, delivered and with no additional charge.
Our doors are available in the following configurations:
Sizes, frames and finishes:
> Maximum width 2860mm for double leaf doors
> Maximum height 3800mm for doublel eaf doors
> 90mm single rebate frame in 2mm galvanised steel
> Standard Door Leaf Material: 1.5mm galvanised steel
> Finish: Polyester powdercoated in one of over 50 standard colours
> Dog bolts and stainless steel ball bearing hinges
> Standard DDA compliant stainless steel threshold
> Side and Over panel options
Hardware:
Choice of hardware to suit application with various panic furniture arrangements
Vision Panels and Louvres:
> Non fire-rated glass
> 254mm x 254mm
> 254mm x 559mm
> 254mm x 762mm
> 254mm x 1524mm
> 457mm x 457mm
> 457mm x 1524mm
> 457mm x 457mm louvre
> 457mm x 1524mm louvre
InstallationEvery steel doorset is supplied factory assembled for the easiest on site installation with double doorsets often having the frame and doors not assembled for easier on site maneuvering.
Every door is supplied with:
Full fitting kit with 11mm allen key for frame adjustments
Pot of touch up paint
Tube of clear mastic for use under the threshold
Selection of drill pieces for fitting into concrete or steel
Self cutting frame fixings and spare hinge screws
Any steel doorset will be heavy with all hardware and sub frame assembled so you will need at least 2 people to handle the door into position and possibly more when the door is an enhanced specification on security for example.
All locks and hardware are already fitted in the factory with only the protruding parts supplied loose for on site fitting.
WarrantyThe Metador guarantee includes:
The frame and door sets are given 15 years guarantee subject to correct door installation and
maintenance.
All our Ironmongery has a 1-year guarantee subject to correct usage and maintenance
The Marine Grade PPC finish is guaranteed for a period of 10 years subject to the cleaning and
maintenance programme.
At Metador the Standard Powdercoat finish is guaranteed for a period of 1 year subject to the cleaning and maintenance programme.
Guarantee Coverage:
Metador will repair or at our option replace any goods sold by Samson Doors to you which are, shown to our reasonable satisfaction to have become defective within the warranty period stated above from the date of purchase.
Where we have supplied a product with an internal defective component, we will only replace
the defective component within the product.
‘Defective’ goods are those which under correct usage, do not function properly because of a
fault in materials, workmanship or design.
We will replace any goods that are found to be defective on delivery, when reported within 3
working days of receiving the delivery. Photo graphic evidence must be provided showing the
defective goods on the pallet that they were delivered on.
Guarantee Exclusions:
WithMetador, there are some situations in which the guarantee does not cover, these include
damage caused by:
Abuse, unsuitable or lack of maintenance and any other neglect that might occur.
Harmful cleaning solvents that may be used to clean the door
Incorrect installation of the door
Damage to the paint finish of the door which may include, scratches, washing and paint
protection.
Use of parts that are installed that are not advised by Metador
External impacts including weather
Repairs or fitting that have been supported by other persons
Fair wear and tear
It should be noted that for any guarantees or warranties to be valid, the cleaning and maintenance regime must be documented and recorded, confirming the frequency of maintenance along with all methods and products used. This must be submitted for any claim to be considered.
Claims Procedure:
The customer must contact Samson Doors or Metador in writing within 3 working days of the discovery of the defect, specifying the nature of the claim and defect.
On request, the customer must return the defective product to Metador Ltd at their cost for inspection.
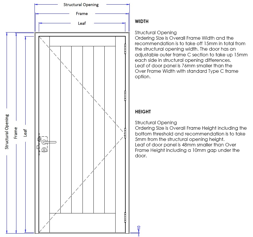
MeasureA steel doorset is always ordered by the OVERALL dimensions including the door leaf and outer sub fixing frame with no tolerances allowed for. Most people would generally allow 5mm tolerance all the way around the door, but it all depends on how square or true your aperture is on site.
This means if your structural opening size is measured as 2200mm width and 2100mm height the door and frame ought to be 2190mm wide and 2090mm high with the frame and any threshold included. You make the final decision on tolerances required.
Always measure the top, middle and bottom of your aperture width and the left and right hand side for the height and if possible do a measure to make sure the opening is square as well.
Always use millimetres for measuring as this is how we relay back the ordering dimensions to you for checking and approving a drawing for your order.
The ExitGuard 2 does have an adjustable fitting frame to take up to 30mm of tolerance into account which helps when the opening is not square.
